※ボタンをクリックすると、印刷ダイアログが開きます。
背景の色とイメージを印刷するように設定し、縮小して全体が収まるように印刷してください。
レオパレスメルシー市場
★家具家電付き★インターネット使い放題・U-NEXT一般作品見放題プラン有り


(サムネールをクリックすると、上に大きく表示されます)














物件概要
| 名称 | レオパレスメルシー市場 | 所在地 | 京都府舞鶴市字市場 | 物件番号 | - |
|---|
| 家賃 | 54,000円 | 敷金 | - | 駐車料 | 3,300円 空有 | 仲介手数料 | 0円 |
|---|---|---|---|---|---|---|---|
| 共益費 | 7,000円 | 礼金 | 1ヶ月 | 火災保険料 | 13,130円 2年 | 賃貸保証料 | 1ヶ月 |
| 更新料 | 16,500円 | その他初期費用 | 58,850円(鍵交換費用16,500円+退去時清掃費41,800円+環境維持費550円) | ||||
| 初期費用 | 244,280円 (内訳:賃料+共益費+駐車料+礼金+敷金+火災保険料+賃貸保証料+仲介手数料+その他初期費用) | ||||||
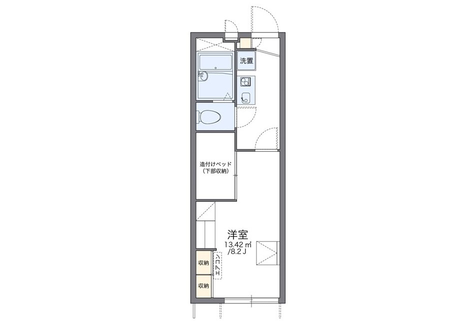
| 間取 | 1K | 賃貸面積 | 22.35m² | 総戸数 | 16 | ||
|---|---|---|---|---|---|---|---|
| 構造 | 木造 2階建 | 築年月 | 2009/4 | 契約期間 | 2年 | 現況 | 空家 |
| 入居時期 | 即時 | 取引態様 | 仲介 | ||||
| 交通 | バス 京バス東高口停停留所 徒歩17分 | 学校区 | |||||
| 設備詳細 | |||||||||
|---|---|---|---|---|---|---|---|---|---|
| オール電化 | - | 給湯方式 | ガス | 給湯 | 2カ所 | 追い焚き | - | シャワー | ◯ |
| バス・トイレ別 | ◯ | トイレ | 洋式 | トイレ設備 | 洗浄暖房便座 | 洗面台 | 2点ユニット | 洗濯機置場 | 室内 |
| 流し台 | ミニキッチン | コンロ | IH- | 照明器具 | ◯ | エアコン | 1カ所 | フローリング | ◯ |
| バルコニー | - | チャイム | モニター付 | 下駄箱 | ◯ | TVアンテナ | - | BSアンテナ | - |
| CSアンテナ | - | インターネット | ◯ | 宅配ボックス | - | 外部物入 | - | エレベータ | - |
| オートロック | - | エントランス | - | 駐車場 | ◯ | 駐輪場 | ◯ | 角部屋 | - |
| ペット | - | ピアノ・楽器 | - | 飲用水 | 公営水道 | 排水(汚水) | 下水道 | ||
| 備考 |
|---|
|
■家具家電付き■環境維持費550円/月■保証委託料100~120%契約時、2年目以降・年毎10,000円■インターネット利用料月額3,630円(税込)~■抗菌施工18,040~23,760円(任意)■入居者サポートシステム料18,975円(任意) |
※物件掲載内容と現況に相違がある場合は現況を優先と致します。
Loading...
※物件掲載内容と現況に相違がある場合は現況を優先と致します。


