※ボタンをクリックすると、印刷ダイアログが開きます。
背景の色とイメージを印刷するように設定し、縮小して全体が収まるように印刷してください。
第三吉村マンション 401号


(サムネールをクリックすると、上に大きく表示されます)
物件概要
| 名称 | 第三吉村マンション 401号 | 所在地 | 京都府舞鶴市字浜 | 物件番号 | - |
|---|
| 家賃 | 44,000円 | 敷金 | 44,000円 | 駐車料 | 5,000円 空有 | 仲介手数料 | 48,400円 |
|---|---|---|---|---|---|---|---|
| 共益費 | - | 礼金 | 44,000円 | 火災保険料 | 賃貸保証料に含む | 賃貸保証料 | 35,200円 |
| 更新料 | 1ヶ月 | その他初期費用 | - | ||||
| 初期費用 | 220,600円 (内訳:賃料+共益費+駐車料+礼金+敷金+火災保険料+賃貸保証料+仲介手数料+その他初期費用) | ||||||
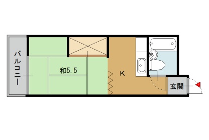
| 間取 | 1K | 賃貸面積 | 17.6m² | 総戸数 | - | ||
|---|---|---|---|---|---|---|---|
| 構造 | 鉄骨造 4階建 | 築年月 | 1982/12 | 契約期間 | 2 | 現況 | 空家 |
| 入居時期 | 即時 | 取引態様 | 仲介 | ||||
| 交通 | JR舞鶴線 東舞鶴駅 徒歩6分 | 学校区 | |||||
| 設備詳細 | |||||||||
|---|---|---|---|---|---|---|---|---|---|
| オール電化 | - | 給湯方式 | ガス | 給湯 | 2カ所 | 追い焚き | - | シャワー | ◯ |
| バス・トイレ別 | - | トイレ | 3点ユニット | トイレ設備 | - | 洗面台 | 3点ユニット | 洗濯機置場 | 室外 |
| 流し台 | ミニキッチン | コンロ | ガス- | 照明器具 | ◯ | エアコン | 1カ所 | フローリング | ◯ |
| バルコニー | ◯ | チャイム | ◯ | 下駄箱 | - | TVアンテナ | - | BSアンテナ | - |
| CSアンテナ | - | インターネット | - | 宅配ボックス | - | 外部物入 | - | エレベータ | - |
| オートロック | - | エントランス | - | 駐車場 | 1台可 | 駐輪場 | ◯ | 角部屋 | - |
| ペット | - | ピアノ・楽器 | - | 飲用水 | 公営水道 | 排水(汚水) | 下水道 | ||
| 備考 |
|---|
|
■賃貸保証契約に火災保険含む
■初回賃貸保証料は賃料等総額の80%(最低保証料4.0万円)、月々保証料は賃料総額の3.8%(最低保証料1900円)
|
※物件掲載内容と現況に相違がある場合は現況を優先と致します。
Loading...
※物件掲載内容と現況に相違がある場合は現況を優先と致します。


