← 通常表示にもどる
※ボタンをクリックすると、印刷ダイアログが開きます。
背景の色とイメージを印刷するように設定し、縮小して全体が収まるように印刷してください。
前のページにもどる
浜中古住宅

(サムネールをクリックすると、上に大きく表示されます)
物件概要
| |
|
|
|
|
|
|
|
| 価格 |
12,000,000円 |
所在地 |
京都府舞鶴市字浜小字浜 |
物件番号 |
- |
| 借地料 |
- |
|
支払い方法 |
- |
名義書替え料 |
- |
| |
|
|
|
|
|
|
|
| 土地 |
| 面積 |
166.94m² (50.49坪) (登記簿面積) |
地目 |
宅地 |
権利 |
所有権 |
| |
|
|
|
|
|
|
|
| 建物 |
| 構造 |
木造 2階建 |
種類 |
居宅 |
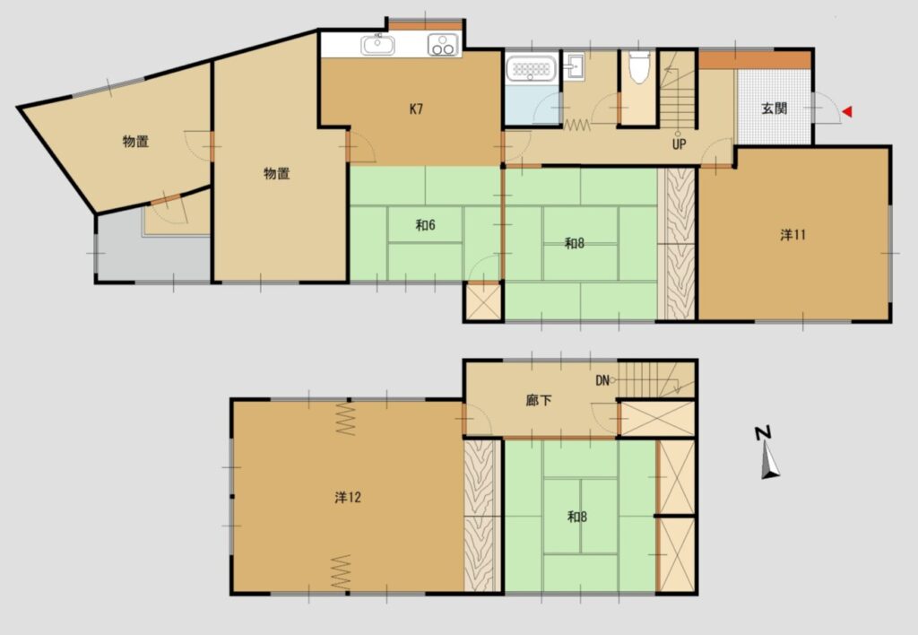
間取り |
6SDK |
| 床面積 |
1階 80.19m² 2階 32.19m² 合計 112.38m² |
築年月 |
不詳 |
| |
|
|
|
|
|
|
|
|
|
| 設備 |
| オール電化 |
◯ |
給湯方式 |
電気 |
給湯 |
3カ所 |
洗面台 |
シャワー付 |
流し台 |
システムキッチン |
| コンロ |
IH3つ口 |
トイレ設備 |
洗浄暖房便座 |
エアコン |
- |
照明器具 |
◯ |
チャイム |
◯ |
| 下駄箱 |
- |
TVアンテナ |
- |
外部物入 |
- |
駐車場 |
- |
|
| 飲用水 |
公営水道 前面道路配管:有 引込:有 |
排水(汚水) |
下水道 前面道路配管:有 引込:有 |
| |
|
|
|
|
|
|
|
| 都市計画・その他 |
| 接道種別1 |
公道 |
接道方向1 |
東 |
接道幅員1 |
7.6m |
接道間口1 |
9.6m |
| 接道種別2 |
|
接道方向2 |
|
接道幅員2 |
- |
接道間口2 |
- |
| 接道状況 |
一方 |
都市計画法 |
市街化区域 |
用途地域 |
準工業地域 |
| 地域地区街区 |
|
建ぺい率 |
60% |
容積率 |
200% |
現況 |
空家 |
| 引渡時期 |
即時 |
引渡条件 |
|
取引態様 |
専任 |
手数料 |
660,000円(税込) |
| 交通 |
JR舞鶴線 東舞鶴駅 徒歩7分 |
学校区 |
新舞鶴小学校 白糸中学校 |
※物件掲載内容と現況に相違がある場合は現況を優先と致します。
※物件掲載内容と現況に相違がある場合は現況を優先と致します。
前のページにもどる