※ボタンをクリックすると、印刷ダイアログが開きます。
背景の色とイメージを印刷するように設定し、縮小して全体が収まるように印刷してください。
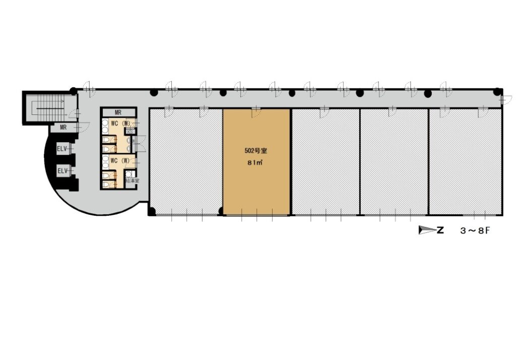
舞鶴21ビル 502号


(サムネールをクリックすると、上に大きく表示されます)






















物件概要
| 名称 | 舞鶴21ビル | 所在地 | 京都府舞鶴市字喜多 | 物件番号 | - |
|---|
| 家賃 | 198,440円 (うち消費税1.804万円) | 敷金 | - | 駐車料 | 空有 2750円(税込)/1台あたり | 仲介手数料 | 198,440円 |
|---|---|---|---|---|---|---|---|
| 共益費 | 81,180円 | 礼金 | - | 火災保険料 | 賃貸保証料 | - | |
| 更新料 | - | その他初期費用 | 1,190,640円(保証金) | ||||
| 初期費用 | 1,668,700円 (内訳:賃料+共益費+駐車料+礼金+敷金+火災保険料+賃貸保証料+仲介手数料+その他初期費用) | ||||||
| 用途 | 店舗 | 賃貸面積 | 81m² | 対象階数 | 5階 | 総戸数 | - |
|---|---|---|---|---|---|---|---|
| 構造 | 鉄骨造 8階建 | 築年月 | 平成9年10月 | 契約期間 | 3 | 入居時期 | 即時 |
| 取引態様 | 仲介 | ||||||
| 交通 | バス とれとれセンター前停留所 徒歩3分 | ||||||
| 設備詳細 | |||||||||
|---|---|---|---|---|---|---|---|---|---|
| オール電化 | - | 給湯方式 | 電気 | 給湯 | - | エアコン | 1カ所 | コンロ | -- |
| トイレ | 共同 | トイレ設備 | 洗浄暖房便座 | 照明器具 | ◯ | TVアンテナ | ◯ | インターネット | ◯ |
| オートロック | - | エレベータ | ◯ | 駐車場 | ◯ | ||||
| 備考 |
|---|
|
■共用駐車場 270台 来客用無料駐車場あり
■空調設備・機械警備(ICカード)
■各階 光ケーブル敷設、室内OAフロア
(電話・インターネット等は個別に契約必要)
■電気料金は使用料に応じて負担
■施設内会議室利用可能 使用料金はお問合せください。
■共益費は税込です。
|
※物件掲載内容と現況に相違がある場合は現況を優先と致します。
Loading...
※物件掲載内容と現況に相違がある場合は現況を優先と致します。


